JavaScript is off. Please enable it to view the full site.

Van bedrijfsruimte naar woning

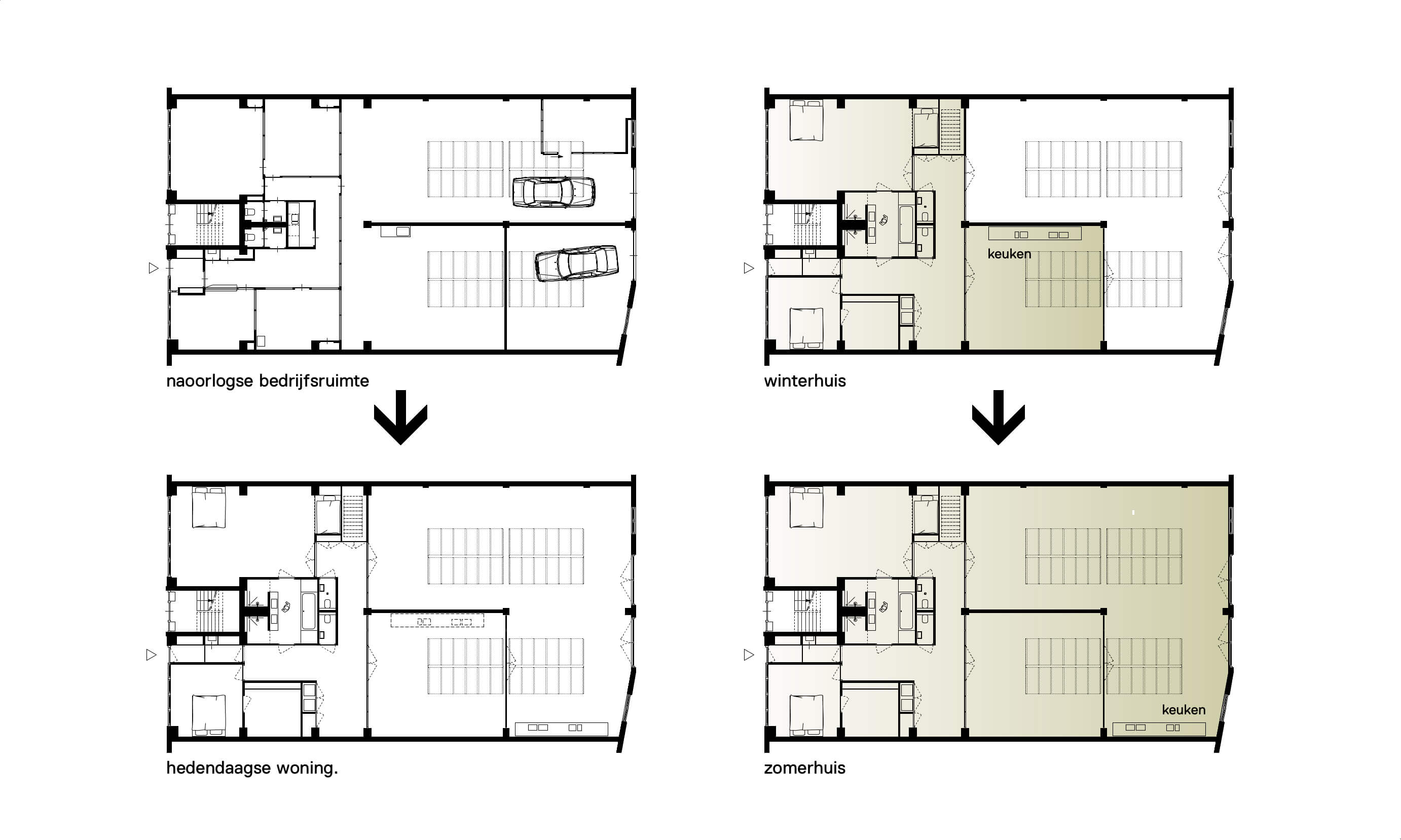
van naoorlogse bedrijfsruimte naar hedendaagse woning.

 

Een voormalige, in het centrum gelegen, bedrijfsruimte uit de jaren vijftig is getransformeerd naar een woonhuis.
Door de mobiele keuken te verplaatsen kan het winterhuis zich in de zomer uitbreiden.
Het riante zomerhuis heeft een vloeroppervlak van 325 m2 en het behaaglijke winterhuis 185 m2.

 

fotografie: Rob 't Hart

http://www.bureaulakenvelder.com/

 

Op verzoek van de eigenaar, maken we het adres niet bekend.

Naam van het gebouw

Van bedrijfsruimte naar woning

Terug naar 2013 Vorige 77 / 90 Volgende Terug naar boven Toon op de kaart 3610 weergaven

Onderwijscentrum Erasmus MC

Fotograaf: Sebastian van Damme

Het Schieblock en Luchtsingel

Fotograaf: Ossip van Duivenbode

Onderwijscentrum Erasmus MC

Fotograaf: Sebastian van Damme

Het Schieblock en Luchtsingel

Fotograaf: Ossip van Duivenbode

Onderwijscentrum Erasmus MC

Fotograaf: Sebastian van Damme

Het Schieblock en Luchtsingel

Fotograaf: DAN

Winnaars Rotterdam Architectuurprijs 2013

Op 18 december 2013 werd de Rotterdam Architectuurprijs uitgereikt. Het Erasmus MC Onderwijscentrum was winnaar van de vakjuryprijs en de publieksprijs ging naar Het Schieblock.

Grote winnaar is de stad Rotterdam, zo concludeert de vakjury. Transformatie zorgt voor een nieuwe laag van verrassing en dynamiek waardoor mensen van steden houden. De jury prijst degenen die de potenties zien, het lef hebben om ze waar te maken en het vakmanschap om met het resultaat te verwonderen. Als winnaar kiest de jury het Erasmus MC Onderwijscentrum waar een desolate buitenruimte op ingenieuze wijze werd getransformeerd tot een charismatische nieuw centrum voor studie en onderwijs. Het publiek koos voor Het Schieblock als een ‘geweldig stedelijk project met Berlijnse allure’ en ‘omdat in deze tijden slopen lang niet altijd de oplossing is.’

prijsuitreiking
Prijsuitreiking 2013 Op 18 december 2013 vond de feestelijke uitreiking plaats van de Rotterdam Architectuurprijs 2013 in het Stadhuis van Rotterdam met als thema Transformatie. Tracy Metz, journalist, auteur en directeur van het John Adams Institute, was voorzitter van de vakjury. Zij reikte de juryprijs uit aan het… lees meer >
Lijst
  1. Dreamhouse
  2. Westerlaancluster, nieuwe vitaliteit door strategisch herontwikkelen
  3. UEB West
  4. Superkubus Exodus
  5. Het Schieblock en Luchtsingel
  6. Woonstudio Franz Ziegler
  7. Joulz gebouw
  8. Kantoor IMd Raadgevend Ingenieurs
  9. Maria Basisschool
  10. Kantoor IMd Raadgevende Ingenieurs, staalfabriek wordt speeltuin voor ingenieurs
  11. Het Nieuwe Instituut (voorheen NAi)
  12. Fenixloods 2
  13. I Tech You!
  14. Van bedrijfsruimte naar woning
  15. Dikhuidenvleugel, Riviérahal Diergaarde Blijdorp
  16. Hogeschool Rotterdam
  17. Johannes de Dichter
  18. Maria Basisschool
  19. Dreamhouse
  20. Zes Pandjes
  21. Haka gebouw
  22. Uit je eigen stad
  23. Het Arcadegebouw, B. Meineszplein
  24. Zes Pandjes
  25. WORM
  26. RET-gebouw
  27. Belasting & Douane Museum
  28. Boomgaardsstraat 276 3012 Rotterdam
  29. Schieblock en Luchtsingel
  30. Mauritsstraat 249-251
  31. Kopblok Pretorialaan
  32. Hogeschool Rotterdam
  33. De Karel Doorman
  34. Woonstudio Franz Ziegler
  35. Central Plaza
  36. Belasting- en douanemuseum
  37. Rotterdam Science Tower
  38. Ahoy Rotterdam
  39. Kinderoogcentrum, Het Oogziekenhuis Rotterdam
  40. Justuskwartier
  41. Het Beukblok
  42. Vasteland 78
  43. The Student Hotel
  44. Mini Mall
  45. forensische psychiatrische polikliniek het Dok
  46. Het Buro-De Bovenkamer
  47. HAKA Recycle Office
  48. Caland Estate
  49. Kantoor Ector Hoogstad Architecten
  50. Justuskwartier
  51. Groot Willemsplein
  52. WORM
  53. Mini Mall
  54. Nieuwe Park Rozenburgschool
  55. De Karel Doorman
  56. Verkeerscentrale Hoek van Holland
  57. kantoor Vestia Stadswonen
  58. Beurs - World Trade Center
  59. De Brandaris - Coloniastraat
  60. Nederlands Architectuur instituut
  61. Holiday Inn Express Rotterdam Centre
  62. De Fabriek
  63. Caland Estate
  64. Onderwijscentrum Erasmus MC
  65. Kantoor incasso- en gerechtsdeurwaardersorganisatie Flanderijn
  66. De Keyser
  67. Plaza & Parkeergarage masterplan campus Woudestein
  68. De Fabriek Delfshaven
  69. RDM Innovation Deck
  70. Van bedrijfsruimte naar woning
  71. Superkubus Exodus
  72. De Brandaris
  73. Onderwijscentrum Erasmus MC
  74. Het Buro en De Bovenkamer
  75. Lanenflat Nieuw Crooswijk
  76. Lanenflat
  77. Nieuw Rotterdams Café
  78. Rotterdam Centraal
  79. Wijnhaventunnel ROTTE-DAM
  80. BML36
  81. OBS De Wilgenstam
  82. Politiebureau Zuidplein
  83. Het Beukblok
vakjury 2013
Ronald Huikeshoven Ronald Huikeshoven begon bij AM als ontwikkelingsmanager. Daarna stapte hij over naar Bouwfonds MAB waar hij eerst ontwikkelingsmanager was en daarna directeur ontwikkeling voor de Noordvleugel van de Randstad. In 2007 keerde hij terug bij AM als regiodirecteur Noord West. In deze rol geeft hij… Lees meer > Janneke Bierman Janneke Bierman is architect en sinds 2005 directeur van Bierman Henket architecten in Esch. Recente projecten van haar hand zijn het Museumkwartier in ’s-Hertogenbosch, zorgcentrum De Oude Mars in Zwolle, de herinrichting van het entreegebied van… Lees meer > Marnix van der Meer Marnix van der Meer studeerde aan de Hogeschool van Utrecht en de Academie van Bouwkunst in Amsterdam. Hij werkte tussen 1996 en 2002 bij Meyer en Van Schooten en richtte samen met Rolf Bruggink in 2002 Zecc Architecten op. Met Bruggink werkte hij onder andere aan De Zwarte Parel.Vanaf 2012 vormt… Lees meer > Tracy Metz Tracy Metz (juryvoorzitter), van oorsprong Amerikaanse, is journalist en auteur. Zij schrijft voor NRC Handelsblad en de Groene Amsterdammer, is internationale correspondent van het Amerikaanse tijdschrift Architectural Record en is als visiting fellow verbonden aan de Graduate School of Design aan … Lees meer > Alijd van Doorn Alijd van Doorn (auteur juryessay) onderzoekt, schrijft, adviseert en onderwijst over procesinnovatie in de architectuurpraktijk. Bovendien werkt ze zelf actief aan vernieuwende, duurzame ontwerp- en ontwikkelprojecten. Voorbeelden zijn de uitbreiding van de Rietveld Academie en duurzame… Lees meer >

We gebruiken alleen cookies om deze website beter te laten functioneren. Lees meer hierover in onze privacyverklaring. Accepteer / Weiger